现代风格
项目时间:2012-06-14 20:16:39 +08:00
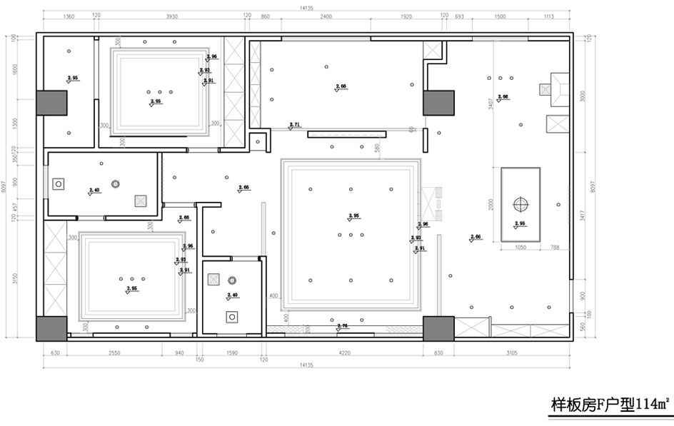
总的做法是从进深方向分割出动静两类空间进门装饰隔断隔出了玄关区,而隔断所使用的玻璃材质又使视觉延伸到后面的客厅区域,可谓是隔而不断,同时配合玻璃材质的金属边框呼应了整体现代的设计风格;开放的厨房通过吧台和餐厅做了一个软性的区分,空间更显开阔,而白色烤漆柜门的使用恰到好处表现了设计风格。
客厅与书房以电视背景隔开,两边黑色金属边框的玻璃推拉门融入到中花白大理石的电视背景中形成一个现代感十足的造型,同时也不失实用性。公共卫生间配以的开放式洗手区以装饰隔断和客厅作了区域上的划分,满足不同使用需求,并且在很大程度上起到了缩短过道的作用,此处隔断与玄关隔断及书房推拉门三者统一于同一种元素中,再一次诠释了现代的设计风格。两个卧室归于整个户型的另一端,保证了空间的私密性。
纵观整个空间,材质的统一以及以浅色系为主的色调的统一演绎出了现代的精彩。

